アズハイム神宮の杜
ホームの設備・
周辺環境
居室は自分らしく、ゆったりとお過ごしいただくために、安全と使いやすさのための工夫をこらしています。お好みの空間演出をお楽しみいただけます。共用スペースではお食事に、ご友人とのご歓談に、心地よい時間をお過ごしください。
居室
※写真はモデルルームであり、実際の居室はベッド・エアコン以外の家具・調度品等は含まれておりません。
共用スペース
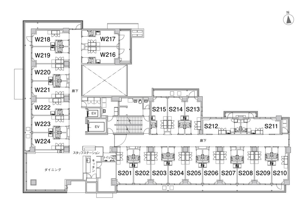
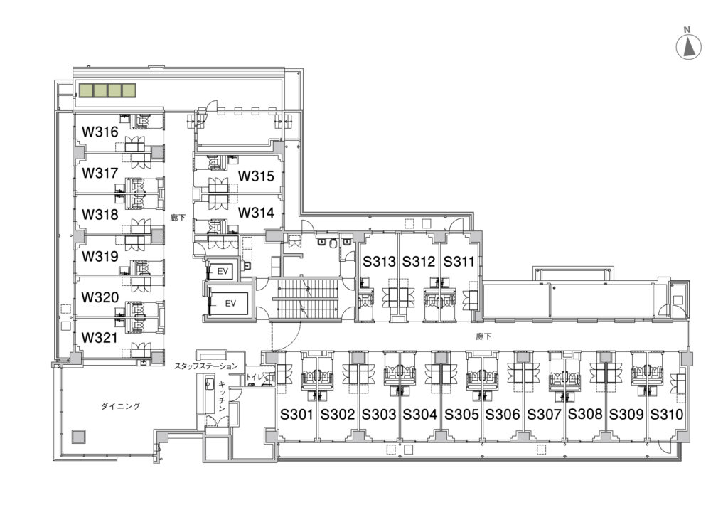
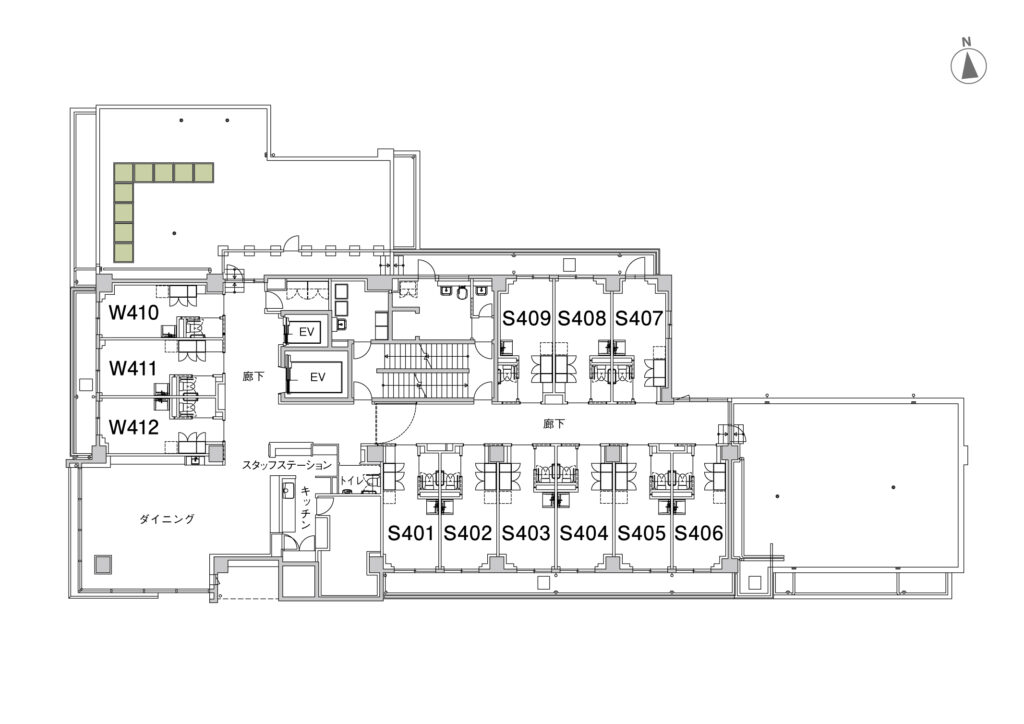
フロアガイド
周辺環境
-
学習院初等科
-
迎賓館赤坂離宮
-
若葉東公園
-
四ツ谷駅(赤坂口)
-
慶應義塾大学病院
-
明治記念館
-
明治神宮外苑
-
国立競技場
-
ホーム概要や料金プランの他、ご入居者や
ご家族の声をまとめた資料をご送付します。
アズハイムのことがよくわかる
資料請求はこちら
-
見学希望日や見学希望先の予約はこちらから。
入居相談員が親切丁寧に対応させていただきます。
見学予約はこちら
